Quick / More Drawing  Display Screen.......

Drawing Details

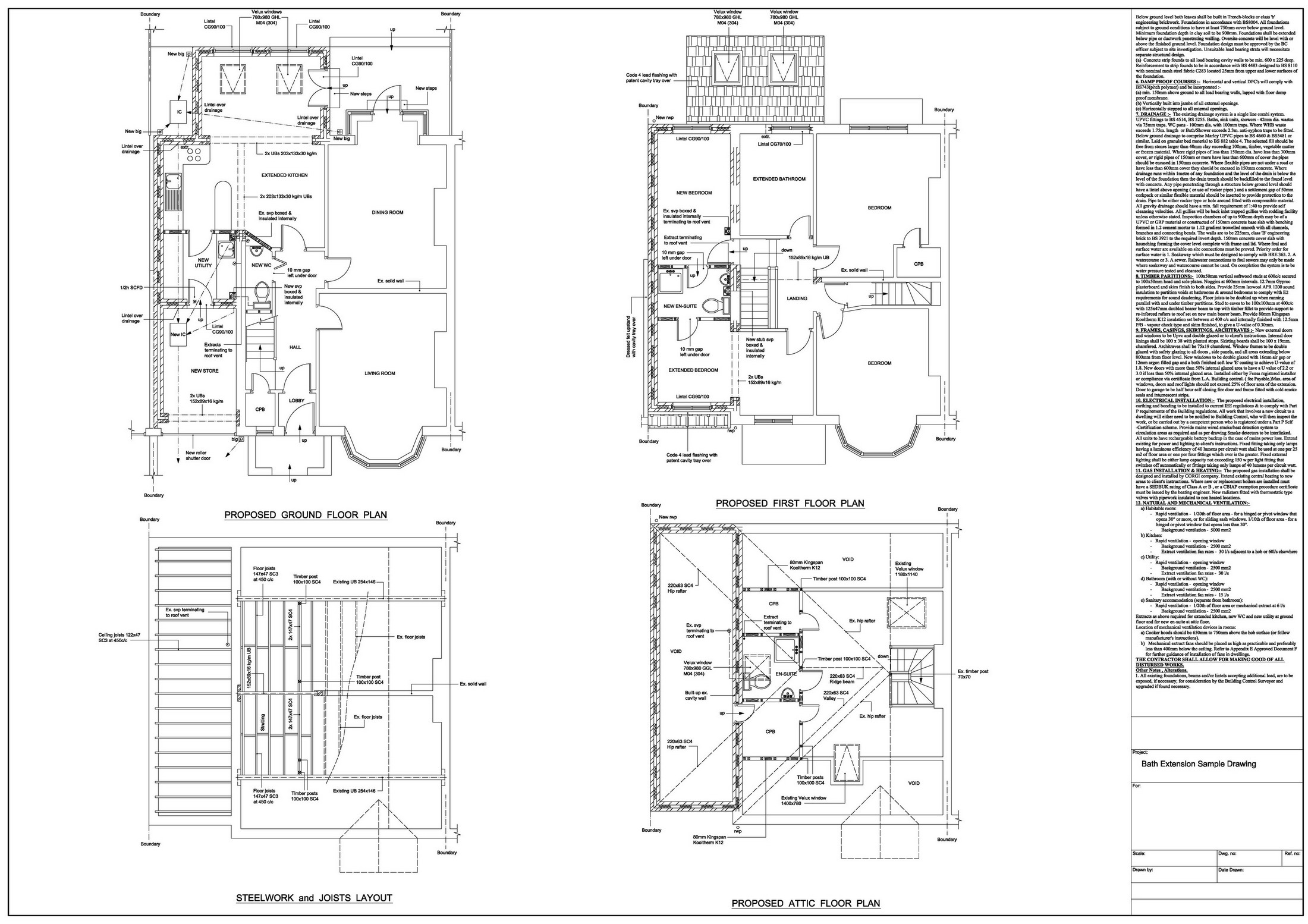
Drawing name :

Two Storey Extension 2

Extension Type :

Two Storey Extension 2
Street Name :  UK
Before Extension : After Extension :


Click the below links to view the drawings :

Twostbefext2.jpg

TwostAftext2.jpg