Quick / More Drawing  Display Screen.......

Drawing Details

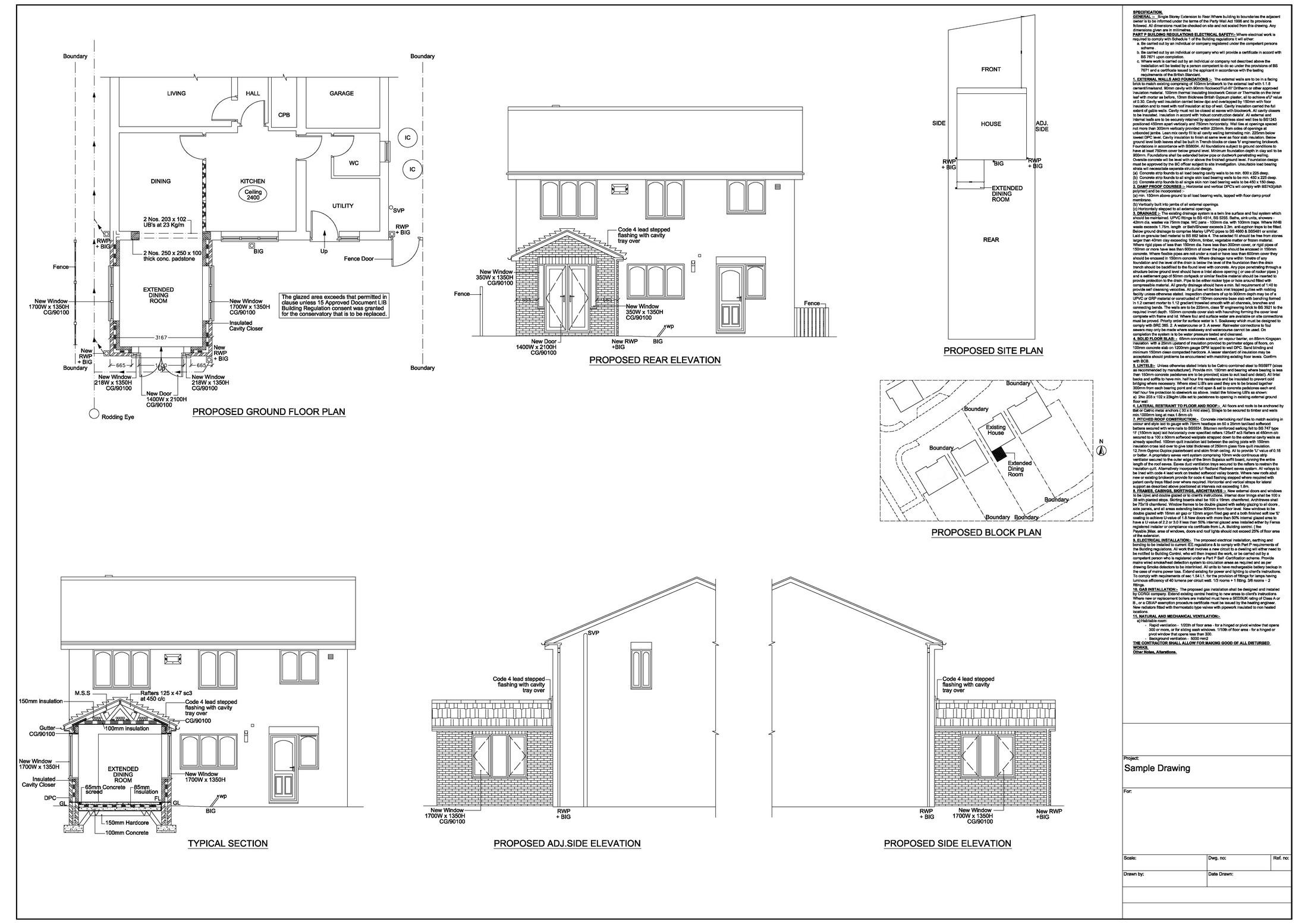
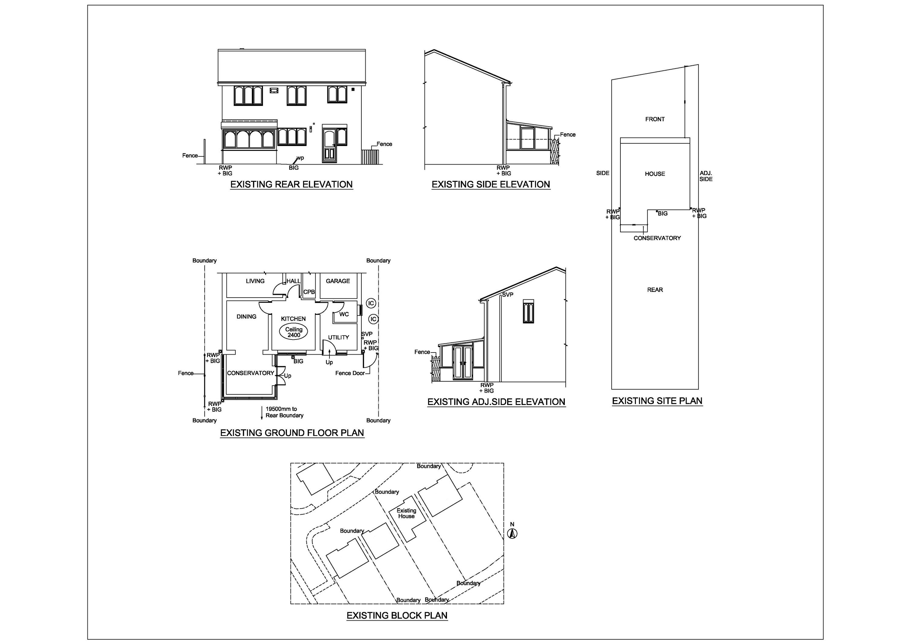
Drawing name :

Dining Extension

Extension Type :

Dining Extension
Street Name :  UK
Before Extension : After Extension :


Click the below links to view the drawings :

Diningbefext.jpg

Diningaftext.jpg