Quick / More Drawing  Display Screen.......

Drawing Details

Drawing name :

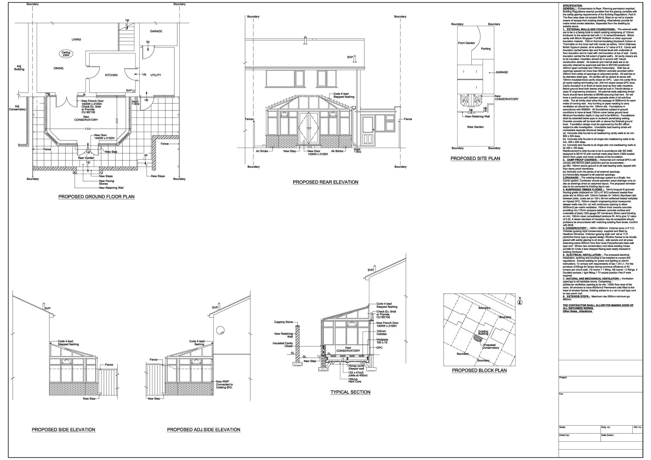
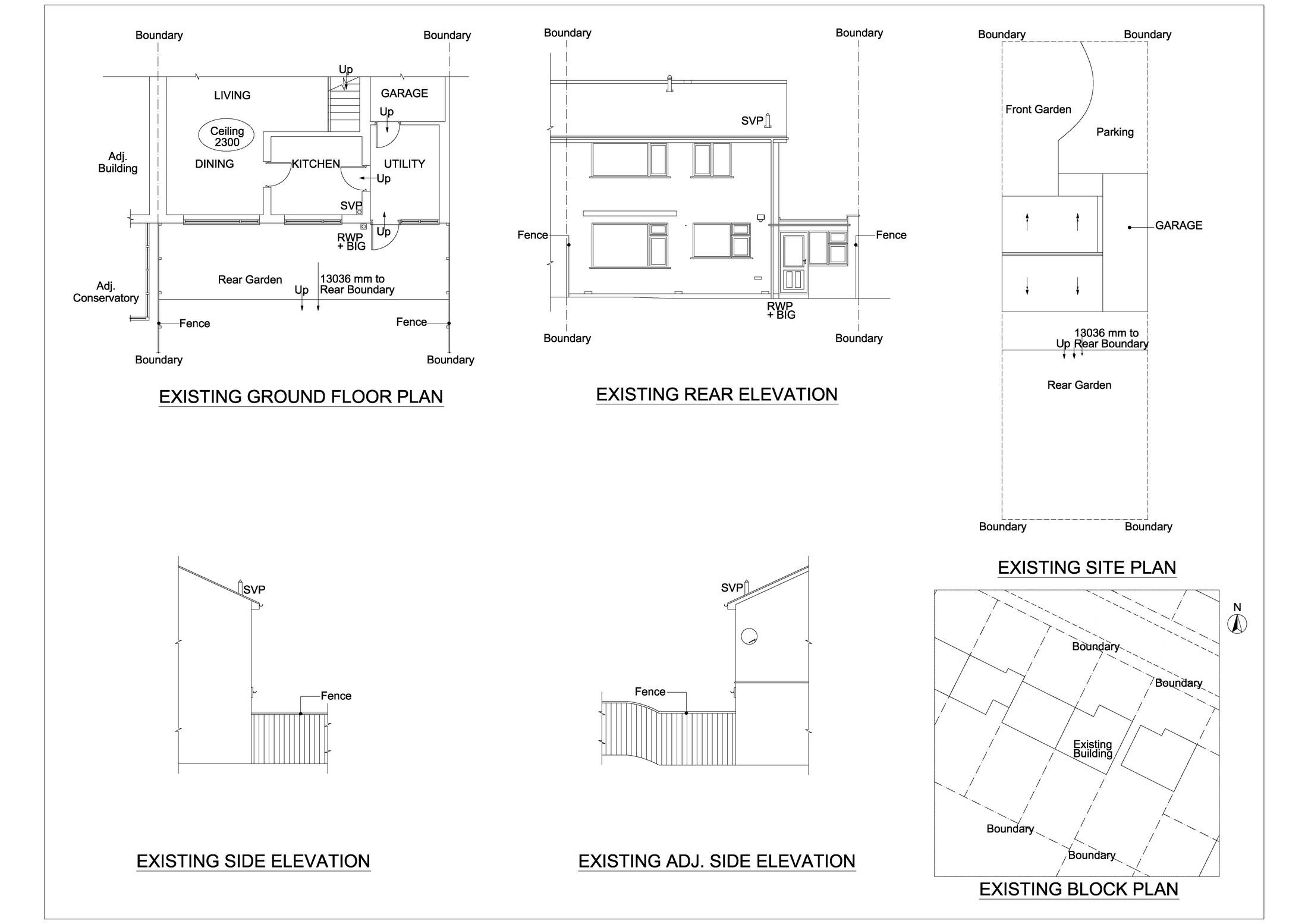
Conservatory

Extension Type :

Conservatory
Street Name :  UK
Before Extension : After Extension :


Click the below links to view the drawings :

Consbefext.jpg

Consaftext.jpg