Quick / More Drawing  Display Screen.......

Drawing Details

Drawing name :

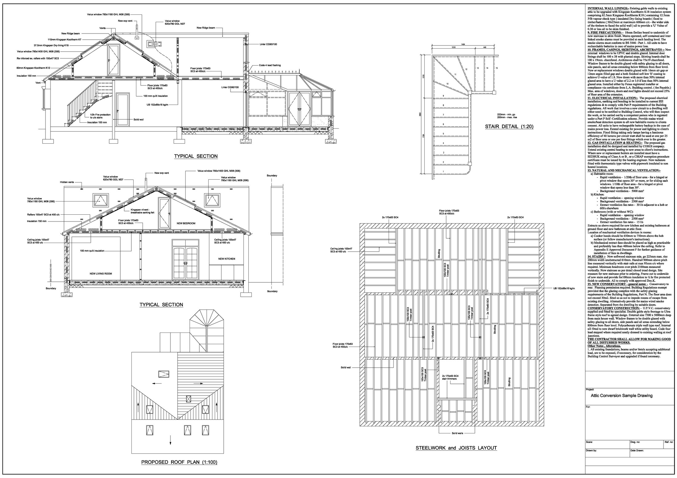
Attic Conversion Sheet # 2

Extension Type :

Attic Conversion
Street Name :  UK
Before Extension : After Extension :


Click the below links to view the drawings :

Atticbefext.jpg

Atticaftext.jpg